
BLOG
ブログ
2025.03.12
トピック
10円…
こんちわ
毎度おなじみのサンキホーム非公認キャラクターのサンキ君です。
やうやう白くなりゆく、山ぎは少し明りて、紫だちたる雲の細くたなびきたる
今日この頃…いかがお過ごしですか?
サンキ君は今日も慌ただしい日々を過ごしております。
春と言えば各メーカー様のカタログが新しくなる季節…
そんな中サンキ君の担当した邸宅がアイカ工業様のオルティノカタログに掲載されました。

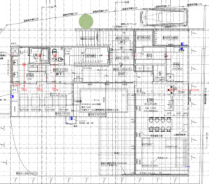
当初頂いた図面はこんな感じの1/100平立の図面のみ

展開図????
ナイナイナイ
プラン?デッサン?
それって美味しいのですか?
兎に角なーんにもない中のスタート…
言えることは…
『図面は全てお施主様の頭の中にある。』
ただこれだけ…(*꒪꒫꒪)チーン
そこからお施主様とサンキ君の長かった愛の共同作業の日々
イメージの共有から始まり素材選びや細かな造作まで
10円はげを作りながら思いを込めて
お施主様のイメージ以上の施工図、展開図を作成し見積もり発注施工管理まで
サンキ君の全てが詰まった邸宅が名だたる建築家やハウスメーカーと共に半ページ程掲載されております。

これでサンキ君も全国デビュー
『真似出来るモノならしてみやがれ‼』でございます。
そんな作品を皆様にも見て頂けたら幸いです♡
ちなみに端っこに写ってるキッチンも
サンキ君がメーカーに造ってもらった一点物なんです。
素敵な邸宅やキッチンにご興味のある方や湘南地域で新しい住まいや自然素材(漆喰や無垢材等)の家づくりをお考えの方は、
是非サンキホームまでお問い合わせ下さい!
To Be Continued……♡
